Le nostre proposte

Dettaglio proposta

Chirignago, Venezia

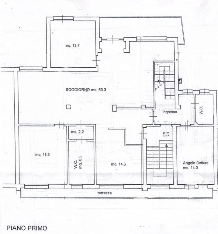
CHIRIGNAGO in posizione centralissima a ridosso della piazza di Chirignago, ti proponiamo Appartamento disposto ai piani primo e secondo, dalle metrature introvabili sul mercato. L'immobile è inserito in un contesto di sole 2 unità abitative con pochissime spese per la gestione condominiale. L'immobile oggi impiegato per uso direzionale si compone di un ingresso che conduce ad un salone di oltre 60 mq, cucina abitabile, tre camere, due bagni e due terrazze; al piano superiore stanza, ampio disimpegno - corridoio e bagno. Il riscaldamento è autonomo, buone finiture. C E. F - I.P.E. 162,56 kWh/mq anno

Codice: SP2747
Categorie: Appartamento -
Area: 210 mq.
Vani: 6
Camere: 3
Bagni: 3